| |
|
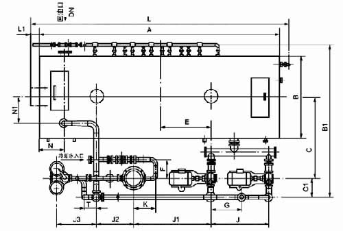
| XHZ-160~XHZ-500地基尺寸 |
型号 |
A |
B |
C |
C1 |
地脚螺栓d |
E |
F |
H |
XHZ-160 |
3940 |
1800 |
1275 |
1250 |
M16 |
1000 |
1000 |
140 |
XHZ-200 |
XHZ-250 |
5300 |
1900 |
1404 |
1442 |
M16 |
1090 |
1100 |
160 |
XHZ-315 |
XHZ-400 |
6200 |
2100 |
1532 |
1536 |
M16 |
930 |
1200 |
180 |
XHZ-500 |
|
|
|
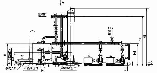
图1-2-7 XHZ-630~XZ-2000 型原理图 |
| XHZ-630~XHZ-2000 外形尺寸 |
型号 |
A |
B |
B1 |
C |
C1 |
E |
F |
G |
H |
H1 |
H2 |
H3 |
XHZ-630 |
6500 |
2180 |
3890 |
2100 |
500 |
1520 |
505 |
860 |
1700 |
1470 |
150 |
3930 |
XHZ-800 |
7000 |
2360 |
4550 |
2580 |
650 |
1500 |
700 |
800 |
1800 |
1470 |
2350 |
3255 |
XHZ-1000 |
7500 |
2500 |
4850 |
2650 |
600 |
1700 |
820 |
1250 |
1900 |
1470 |
235 |
3855 |
XHZ-1250 |
8100 |
2750 |
5125 |
2800 |
5500 |
1767 |
750 |
1266 |
2100 |
1790 |
235 |
4455 |
XHZ-1600 |
8800 |
3000 |
5500 |
3000 |
700 |
1750 |
900 |
1850 |
2320 |
1970 |
235 |
3320 |
XHZ-2000 |
9700 |
3080 |
5600 |
3200 |
660 |
2150 |
1000 |
1420 |
2500 |
2150 |
235 |
3970 |
|
| |
型号 |
H4 |
H5 |
H6 |
H7 |
H8 |
J |
J1 |
J2 |
J3 |
K |
L |
L1 |
N |
N1 |
P |
S |
S1 |
T |
DN |
XHZ-630 |
3482 |
1644 |
880 |
678 |
2550 |
1600 |
2100 |
1030 |
1070 |
570 |
6730 |
200 |
280 |
790 |
300 |
150 |
100 |
322 |
250 |
XHZ-800 |
2720 |
1800 |
1280 |
728 |
300 |
1600 |
2100 |
1130 |
1470 |
800 |
7000 |
300 |
300 |
880 |
320 |
30 |
40 |
570 |
250 |
XHZ-1000 |
3320 |
1820 |
1086 |
895 |
300 |
1850 |
2420 |
1900 |
1150 |
800 |
8000 |
300 |
350 |
850 |
350 |
55 |
26 |
360 |
300 |
XHZ-1250 |
3920 |
1850 |
1132 |
895 |
300 |
1966 |
2160 |
1333 |
1227 |
1000 |
8300 |
300 |
400 |
1075 |
350 |
27 |
12 |
427 |
300 |
XHZ-1600 |
3300 |
2150 |
1240 |
915 |
320 |
2500 |
2800 |
1840 |
1300 |
1000 |
9200 |
300 |
400 |
1100 |
400 |
67 |
120 |
427 |
350 |
XHZ-2000 |
3375 |
2240 |
1252 |
810 |
300 |
2550 |
3350 |
1800 |
1543 |
1000 |
9260 |
300 |
350 |
1090 |
400 |
32 |
132 |
537 |
400 |
|
| |
|
图1-2-7 XHZ-630~XZ-2000 型原理图 |
|
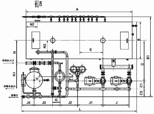
图1-2-8 XHZ-630~XHZ-2000 型地基图 |
型号 |
A |
B |
C |
C1 |
C2 |
C3 |
D |
D1 |
地脚螺栓 |
d |
d1 |
XHZ-630 |
6500 |
2180 |
1502 |
1600 |
580 |
2100 |
350 |
522 |
M16 |
M24 |
XHZ-800 |
7000 |
2360 |
1494 |
1600 |
600 |
2600 |
600 |
720 |
M16 |
M36 |
XHZ-1000 |
7500 |
2500 |
1688 |
1850 |
720 |
3050 |
600 |
1015 |
M16 |
M36 |
XHZ-1250 |
8100 |
2750 |
1757 |
1966 |
1393 |
2560 |
600 |
720 |
M20 |
M36 |
XHZ-1600 |
8800 |
3000 |
1741 |
2500 |
1050 |
3140 |
600 |
930 |
M20 |
M36 |
XHZ-2000 |
9700 |
3080 |
2075 |
2550 |
1200 |
3343 |
650 |
930 |
M20 |
M36 |
|
| |
型号 |
E |
F |
G |
H1 |
H2 |
J |
K |
L |
N |
R |
XHZ-630 |
550 |
2100 |
570 |
15 |
100 |
500 |
350 |
2850 |
780 |
250 |
XHZ-800 |
799 |
2580 |
640 |
30 |
40 |
500 |
390 |
3100 |
820 |
400 |
XHZ-1000 |
779 |
2650 |
585 |
55 |
26 |
550 |
390 |
3450 |
890 |
340 |
XHZ-1250 |
817 |
2800 |
680 |
27 |
12 |
620 |
450 |
3646 |
930 |
400 |
XHZ-1600 |
817 |
3000 |
815 |
67 |
120 |
660 |
540 |
5206 |
1092 |
400 |
XHZ-2000 |
938 |
3260 |
1000 |
32 |
133 |
730 |
570 |
4500 |
1120 |
450 |
|
|
|
| |
型号 |
A |
B |
B1 |
C |
C1 |
C2 |
E |
F |
F1 |
G |
H |
H3 |
H4 |
H5 |
H6 |
H7 |
H8 |
XHZ-630A |
6500 |
2180 |
4660 |
2380 |
520 |
470 |
1520 |
400 |
260 |
450 |
1700 |
3930 |
3482 |
2250 |
1900 |
1470 |
678 |
XHZ-800A |
7000 |
2360 |
5000 |
2690 |
650 |
260 |
1500 |
400 |
250 |
630 |
1800 |
3255 |
2720 |
2300 |
1900 |
1470 |
728 |
XHZ-1000A |
7500 |
2500 |
5200 |
2900 |
700 |
|
1700 |
170 |
520 |
750 |
1900 |
3855 |
3320 |
2450 |
2100 |
1650 |
800 |
XHZ-1250A |
8100 |
2750 |
5650 |
3350 |
640 |
100 |
2000 |
300 |
750 |
1150 |
2100 |
4455 |
3920 |
2800 |
2200 |
1790 |
892 |
XHZ-1600A |
8800 |
3000 |
5950 |
3400 |
700 |
100 |
1950 |
450 |
650 |
880 |
2320 |
4280 |
3900 |
2850 |
2150 |
1970 |
915 |
XHZ-2000A |
9700 |
3080 |
6830 |
3890 |
870 |
|
2400 |
370 |
350 |
1030 |
2500 |
5100 |
4800 |
3300 |
2640 |
2150 |
1090 |
|
| |
型号 |
H9 |
H10 |
J |
J1 |
J2 |
J3 |
J4 |
K |
N |
N1 |
N2 |
N3 |
P |
S |
S1 |
L |
DN |
XHZ-630A |
300 |
150 |
1550 |
1550 |
1130 |
1110 |
740 |
260 |
1260 |
1345 |
280 |
790 |
200 |
15 |
100 |
7000 |
250 |
XHZ-800A |
300 |
235 |
1600 |
1500 |
1550 |
18550 |
760 |
100 |
1560 |
1480 |
300 |
880 |
320 |
30 |
|
7650 |
250 |
XHZ-1000A |
300 |
235 |
1850 |
1900 |
1700 |
1550 |
900 |
320 |
1390 |
1600 |
350 |
850 |
350 |
55 |
26 |
8200 |
300 |
XHZ-1250A |
300 |
235 |
1800 |
1800 |
1800 |
1950 |
800 |
300 |
1770 |
1750 |
340 |
1075 |
350 |
27 |
100 |
8750 |
300 |
XHZ-1600A |
320 |
235 |
2100 |
1950 |
2000 |
2200 |
700 |
300 |
1930 |
1825 |
400 |
1100 |
400 |
67 |
120 |
9950 |
350 |
XHZ-2000A |
320 |
235 |
2370 |
2170 |
2200 |
2200 |
870 |
350 |
2030 |
2800 |
420 |
1090 |
450 |
320 |
133 |
10300 |
400 |
|
| |
|
|
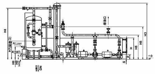
图1-2-11 XHZ-630A~XHZ-2000A 型地基图 |
| |
|
| |
|