管路安装附件

油气润滑元件

联系我们

企业名称:南通创凡机械制造有限公司

手机:15358766637

电话:0513-83117786

传真:0513-83117786

地址:启东市台角工业园区7号

网址 :cf@ntchuangfan.com  

产品介绍

您的当前位置: 首 页 >> 产品介绍
 
GDK03型电气控制箱(40MPa)
一、概述
  GDKO3型电控箱有监控及全自动两种,它适用于40MPa双线终端式干油集中润滑系统中,用于控制润滑泵、换向阀、补脂泵等相互间协调工作,能对系统中的供油点实现自动供油,供油完成后,自动停止。油箱中液位低于一定限度时,补脂泵自动启动,注满油后,自动停止。
本控制箱能发出“供油时间延长”、“贮油筒空”、“超负荷运转”等故障信号。具有持续,手动和自动多种控制工作状态,可通过箱面上的转换开关来切换。持续工作状态:当润滑泵启动后持续地向系统两条主管线供送润滑脂;手动工作状态:当与主机联锁信号接通后,手动启动润滑泵运转向系统供送润滑脂,自动换向完成一个润滑周期供脂后自动停止;自动工作状态:当与主机联锁信号接通后,润滑泵按系统设定的时间间隔定时向系统供送润滑脂,完成一个润滑周期后自动停止。润滑泵不管在何种状态,一旦贮油筒空,补脂泵就会自动启动补脂,补满后自动停止。

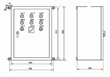
二、外形尺寸
三、标牌符号及文字
序号
符号
标牌文字
序号
符号
标牌文字
序号
符号
标牌文字
1
HL1
工作准备指示
6
HL6
系统超压
11
SB4
加油泵启动
2
HL2
线I工作状态
7
HL7
泵马达过载
12
SB5
加油泵停止
3
HL3
线II工作状态
8
HL8
贮油筒空
13
SB3
故障复位
4
HL4
加油泵工作
9
SB1
润滑泵启动
14
SA1
自动/手动/持续
5
HL5
监控时间超过
10
SB2
润滑泵停止
15
SA2
关/电铃/开
四、GDK-03电气控制箱外部接线图
五、使用说明
1、适用主电源AC380V、50HZ。
2、适用环境温度-10℃~40℃,湿度90%。
3、周围环境无导电的介质(气体、液体)。
4、垂直安装,其倾斜度不大于5°。